Cocktail Bar NYC

1777 sq ft
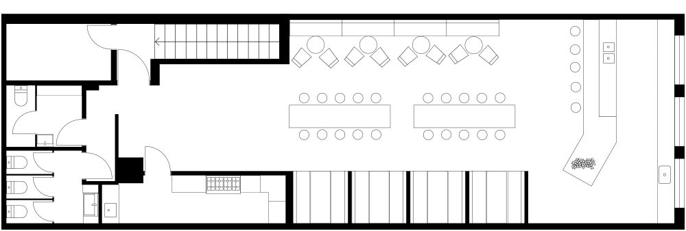
165 m²

Modern simplicity reigns supreme in this cocktail bar NYC. The long, rectangular-shaped space features moody blue-grey walls and light hardwood flooring. A sleek black top can be found on top of a pair of long hightop tables lined with bar stools found at the center of the room. A long oatmeal upholstered bench runs along one side of the wall, providing complementary seating to round, black tables and white chairs. Cozy booths are positioned on the other side of the space with wood tables and oatmeal seating. Bright yellow lamps and matching pendant lighting add a pop of color against the subtle color scheme of each table setting. The kitchen area includes light grey flooring and generous counter space. The bathrooms lie at the back of the bar next to the stairs, and a generous storage room.



Similar Floor Plans


More From This Contributor