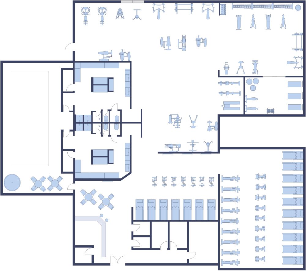
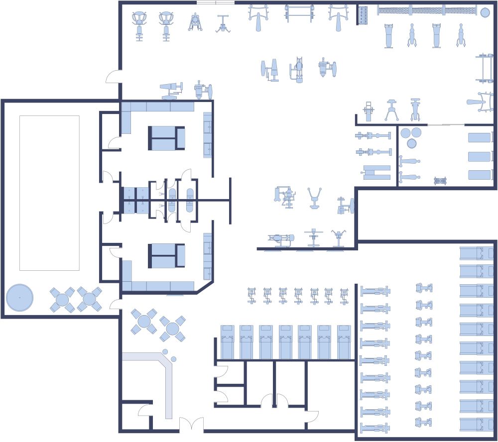
Fitness Center With Pool and Hot Tub

8496 sq ft
789 m²

For any fitness center to be effective, it must have strength training and cardio equipment. In this fitness center with pool and hot tub, there is a large strength-training area with several machines that work out different body parts. There's also a separate area with free weights and benches for those who prefer this mode of strength training. A separate room has yoga mats and exercise balls. Two other fitness center rooms are devoted to cardio equipment, such as treadmills, stationary bikes, and elliptical trainers. In one corner of the fitness center is a snack bar where fitness enthusiasts can enjoy smoothies and other healthy snacks. Two changing rooms with lockers, toilets, and showers lead to the pool area with a hot tub. Overall, this fitness center is one that will cater to all types of gym-goers.


Made by
Gym Layouts

Similar Floor Plans


More From This Contributor