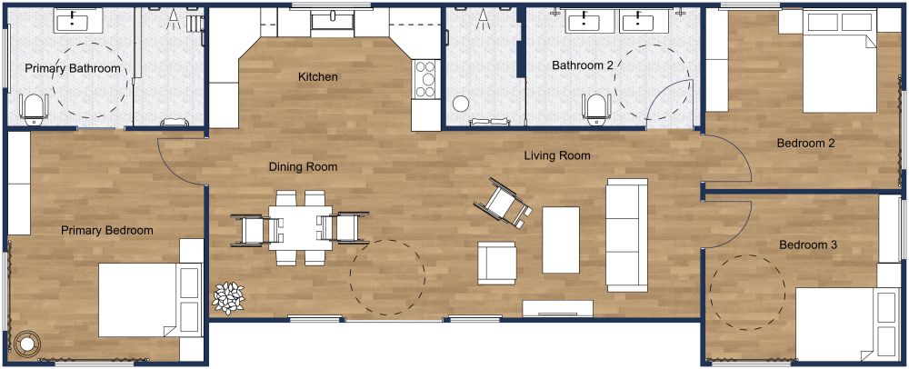
Residential Floor Plan with ADA Bathroom

1300 sq ft
121 m²

This residential floor plan features an open layout with an ADA-compliant bathroom. The living area includes one medium-blue sofa facing a chair and wheelchair, with a coffee table in between. It flows into the dining area, which has a table with four bright orange chairs and two brown wheelchairs. Adjacent is the kitchen with a U-shaped counter, a double-bowl sink, a refrigerator, and a cooking range. There are three bedrooms, each with a double bed. The master bedroom has an en suite bathroom with a shower, a toilet with safety rails, and a sink. Another bathroom, accessible from the living area, has twin sinks, a toilet with safety rails, and a shower. Both bathrooms are spacious and easy to use for people with disabilities. Overall, this floor plan is decorated mostly in neutral blues and greys with a few pops of color, making it a great accessible living space.



Similar Floor Plans


More From This Contributor