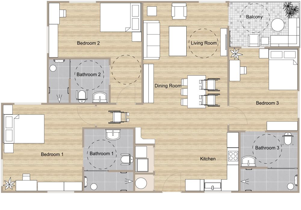
ADA House Floor Plan

1476 sq ft
137 m²

A person in a wheelchair can maneuver around the house in this ADA-compliant floor plan; there is plenty of space and no obstructions. The living room features one comfortable grey couch and one grey chair placed at right angles to each other. With an open floor plan, the living room flows into the dining area, which has a table with space for wheelchairs. This area leads into the kitchen, which includes an L-shaped counter, a sink, a refrigerator, a cooking range, and a laundry room. The three bedrooms are decorated in different colors—brown, blue, and purple. Each bedroom has a double bed, a workstation, and an en suite bathroom with a toilet, a sink, and a roll-in shower. All the toilets have safety rails, and there is ample space for a wheelchair to move around. Additionally, there’s a small outdoor area with an L-shaped couch and a coffee table.



Similar Floor Plans


More From This Contributor