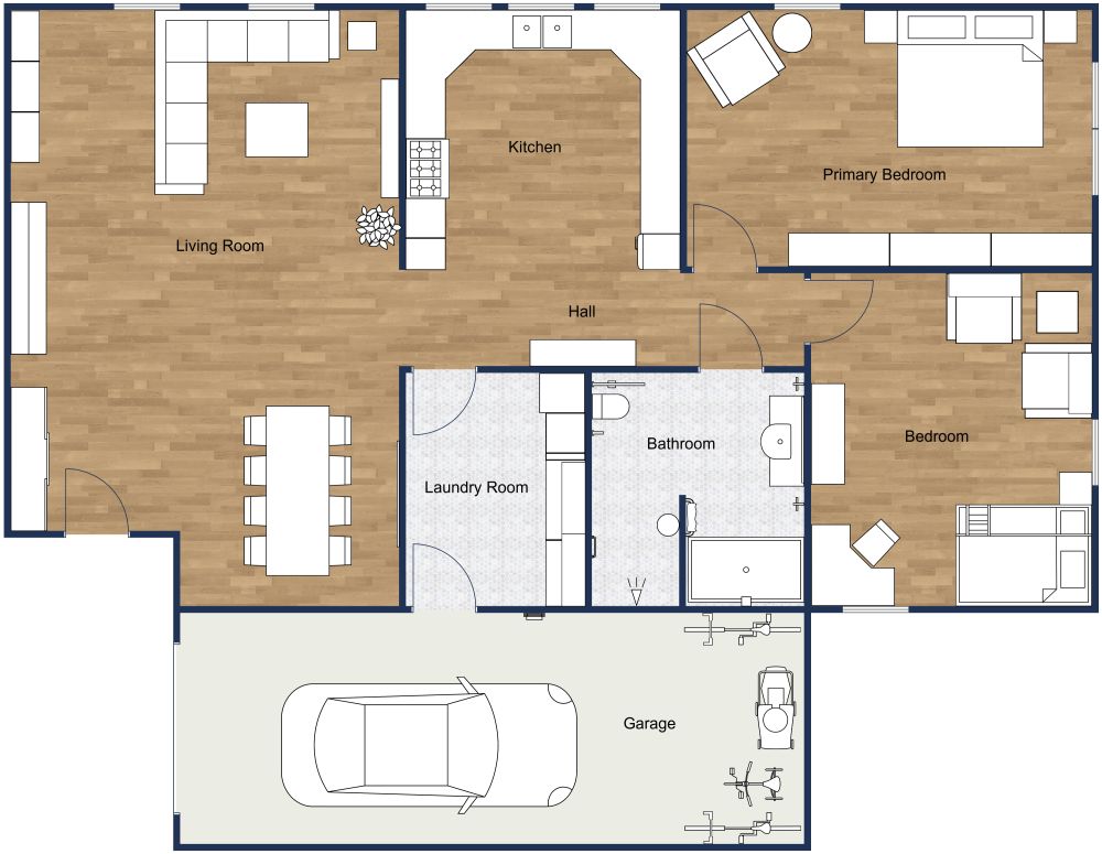
Senior Cottage Floor Plan

1906 sq ft
177 m²

Designed as the ideal senior cottage floor plan, this layout delivers maximum benefits to seniors who want everything in one place. The open-plan living and dining area perfectly balances comfort and convenience, providing a spacious area for you to personalize. Adjacent to the living area is a separate space that you can use as you wish. The separate kitchen allows you to cook and bake without interfering with the activities happening elsewhere in the home, and it features a direct access door to the garage. The bedroom is spacious enough for a king-sized bed and a sitting area. The bathroom includes a walk-in shower for convenience, as well as a separate tub for relaxation. The separate guest room next to the bedroom is ideal for use as a TV lounge, den, library, or workspace, and it includes a built-in desk in the corner. The oversized single-car garage offers ample room for the family car, a golf cart, and additional hobby items.



Similar Floor Plans


More From This Contributor