Small Retirement House Floor Plan

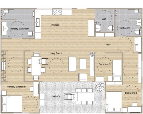
Modern style exudes from this small retirement house floor plan. Through the front door, you'll find an open-concept layout with a kitchen, living room, and dining area. The kitchen area features a wall-to-wall granite countertop with stainless steel appliances and flows seamlessly into the dining area and living room. A small patio with gray stone flooring can be accessed through a sliding glass door off the living room. On the other side of the front door lies the bathroom. A small vanity area with a sink and a mirror can be found outside the bathroom where the toilet and walk-in shower are. Detailed black-and-white tile gives the bathroom a contemporary flare. The bedroom is positioned across from the sink and includes a large window. Black trim and light wood flooring throughout the floor plan add to this home's effortlessly chic ambiance.

504 sq ft
47 m2
1 Level

This plan can be customized

Edit This Project

Want to edit this floor plan or create your own?

Download App

Similar Floor Plans


More From This Supplier