Ranch Floor Plan for Retirees

2673 sq ft
248 m²

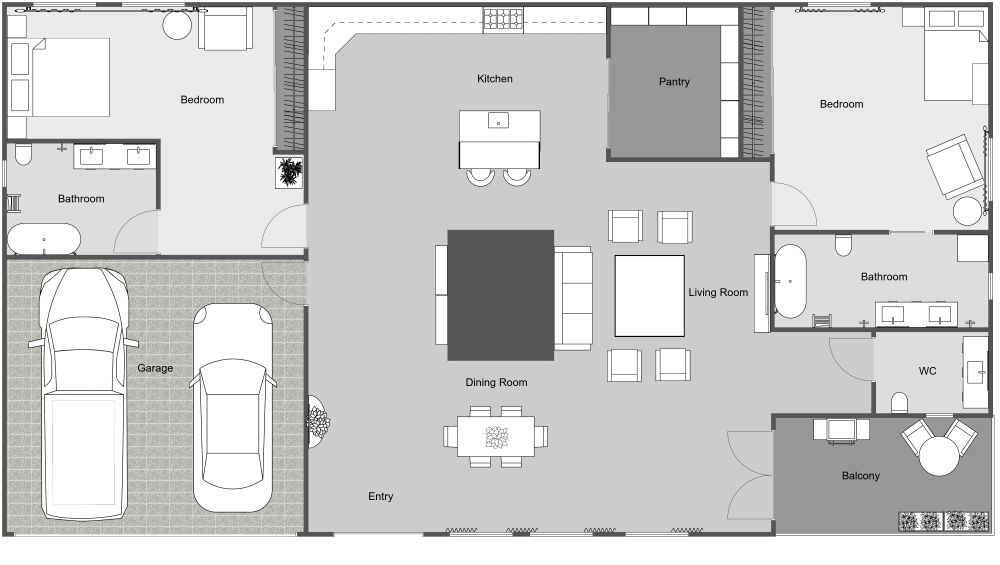
This ranch floor plan for retirees takes open-concept living to the next level. The primary living space is positioned at the center of the home, featuring an oversized room that includes the living room, kitchen, and dining area. The kitchen has generous counter space, ample storage, and a large, attached pantry. A center island provides additional workspace. To the left of the kitchen, there's a bedroom with a private bathroom that includes a tub and double sinks. On the opposite side lies a second bedroom, also with a private bathroom. This home also includes a half-bathroom and a two-car garage, making it perfect for a couple or friends to live together comfortably. A small patio with beautiful stone flooring is positioned in the corner of the floor plan, offering a pleasant outdoor space.



Similar Floor Plans


More From This Contributor