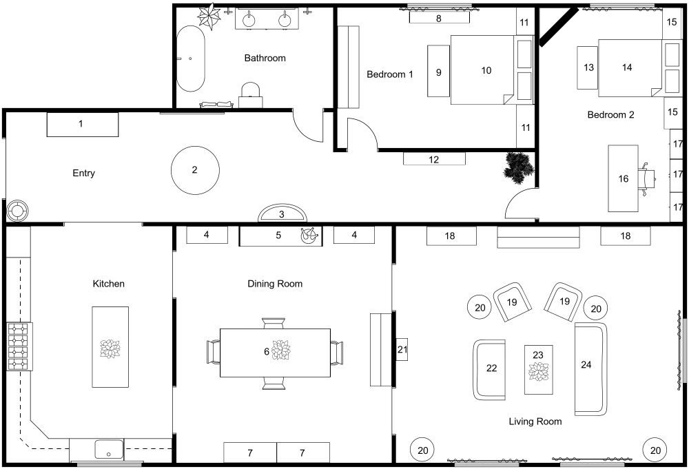
Luxury Floor Plan for a Retirement Couple

1904 sq ft
177 m²

Are you looking to downsize your home in retirement while maintaining a certain lifestyle? This luxury floor plan, designed for a retired couple, may be the perfect option for you. This two-bedroom, one-bathroom retirement home spans almost 2,000 square feet and exudes luxury at every turn. Upon entering, you're greeted by an elegant foyer with gorgeous dark hardwood floors. The spacious living room has a bright, airy feel, thanks to natural light streaming in from three windows. Next is a formal dining room that leads into the gourmet kitchen, complete with a farmhouse sink and a large island perfect for entertaining. Two spacious bedrooms provide ample room for family visits. This thoughtfully designed layout offers the perfect balance of comfort, style, and functionality, making it an ideal retirement home.



Similar Floor Plans


More From This Contributor