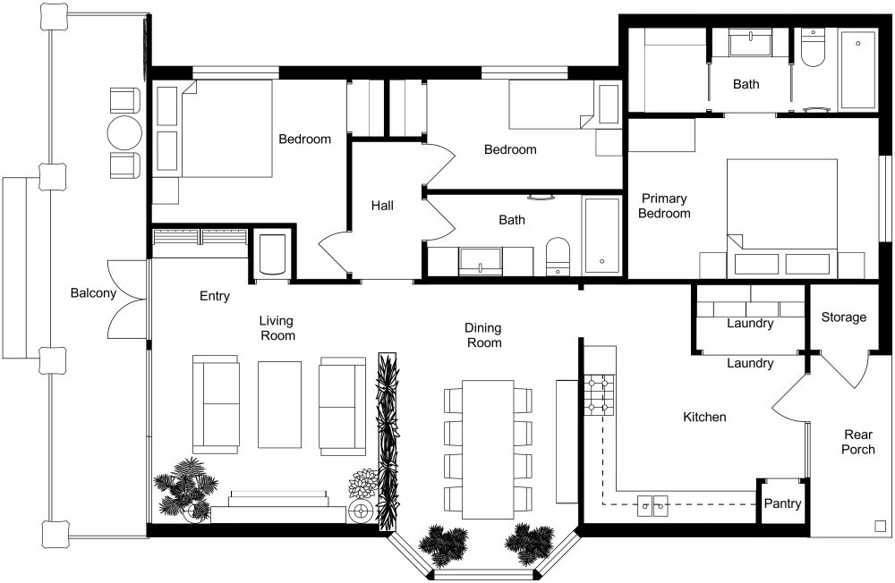
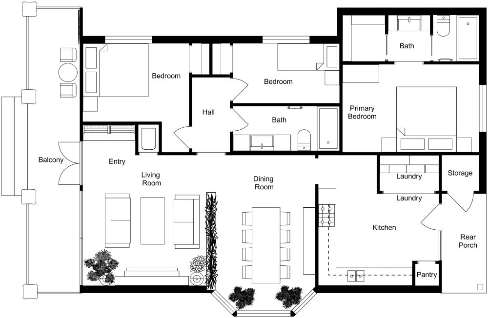
Best Floor Plan for 1200 sq ft House

1208 sq ft
112 m²
1 Level
3 Bedrooms
2 Baths

You'll love the relaxing, feminine vibes of this ideal floor plan for a 1,200 sq. ft. house. The front of the home features a spacious porch that leads into an inviting living room with bright windows and a cozy fireplace. Past the living room, you'll find a charming dining room with three large windows. Beyond the dining room, the kitchen boasts L-shaped granite countertops and a separate pantry. The laundry room is located in the corner of the kitchen, along with a small back porch and outdoor storage closet. The home includes three bedrooms and two bathrooms. Light hardwood floors are found throughout all the living spaces except for the bathrooms, which have cream tile floors. A soft color scheme helps every room in this home feel light, airy, and relaxing.


Made by
Home Designs

Similar Floor Plans


More From This Contributor