3500 sq ft House Plan

3444 sq ft
320 m²
2 Levels
6 Bedrooms
5 Baths
1 Half Bath

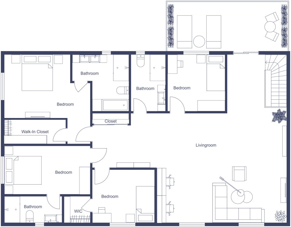
What a delightful two-story, 3,500 sq ft floor plan! The spacious living and dining room is complemented by a beautiful kitchen featuring worktops and cabinetry on three sides, a center island/breakfast bar, and a butler's pantry. Enhancing the living design, both front and rear patios offer ample space for outdoor enjoyment, entertaining, and dining. Access to the rear deck is through a mudroom equipped with a sink, worktop, cabinets, and a large storage closet. The great room leads to two bedrooms, each with an en-suite bathroom; one also includes a walk-in closet. On the other side of the great room is a versatile room with a tiled area and storeroom, plus direct access to the rear patio. A convenient half-bathroom is adjacent to the stairs leading up to another beautifully designed living area. The second floor features a lovely living room, four bedrooms, and a guest bathroom. Two of these bedrooms have en-suite bathrooms, with both this bedroom and bedroom #3 offering walk-in closets. To top it off, there’s an enclosed deck.


Made by
Home Designs

Similar Floor Plans


More From This Contributor