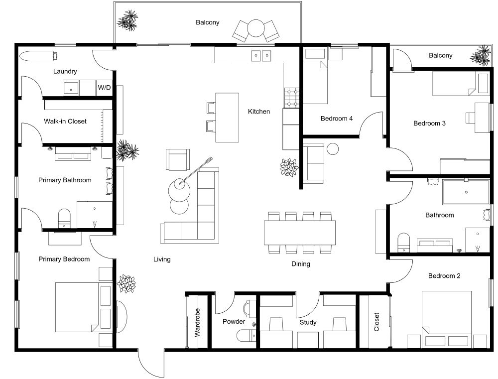
2000 sq ft Apartment Plan

Discover the perfect blend of comfort and functionality with this 2000 sq ft Apartment Plan. Designed for modern living, this spacious layout features four bedrooms, including a luxurious primary suite with a walk-in closet and private bath. The open-concept kitchen, dining, and living areas create a welcoming space ideal for entertaining and family life. A dedicated study, powder room, and ample storage add convenience, while two balconies extend your living space outdoors. With a separate laundry room and smart flow between rooms, this apartment plan combines style with everyday practicality. Whether for a growing family or those who love to host, this thoughtfully designed home delivers the space and flexibility you need.

Made by
Home Designs
2014 sq ft
187 m2
1 Level
4 Bedrooms
2 Baths
1 Half Bath

This plan can be customized

Edit This Project

Want to edit this floor plan or create your own?

Download App

Similar Floor Plans


More From This Supplier