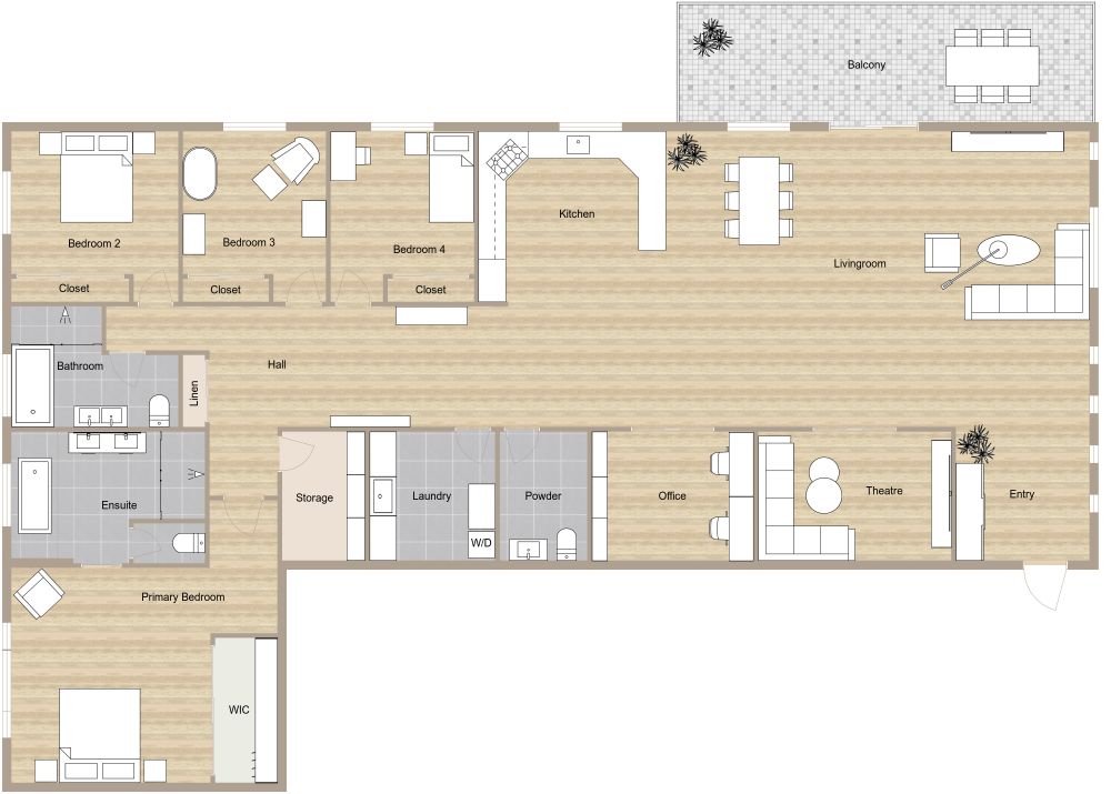
Large 4 Bedroom Apartment with Balcony

2788 sq ft
259 m²
1 Level
4 Bedrooms
2 Baths
1 Half Bath

You've discovered this spacious 4-bedroom apartment with a balcony, so let's see what you get. A large entry lobby welcomes you into the expansive great room, offering plenty of space for family time and shared meals. The kitchen's clever angular countertop design subtly separates it while keeping it integrated with the rest of the great room. A shared bathroom serves three bedrooms, each offering good closet space. For privacy, the primary en-suite bedroom with a walk-in closet is tucked away down a short corridor. The apartment's thoughtful design continues with a separate sitting/TV room opposite the great room and, next to it, a home office with desk space for two. A convenient half bath and a separate utility or laundry room complete the interior. Step outside the great room, and you'll find a large balcony—perfect for those warm days when you want to extend your living space and enjoy the outdoors.


Made by
Home Designs

Similar Floor Plans


More From This Contributor