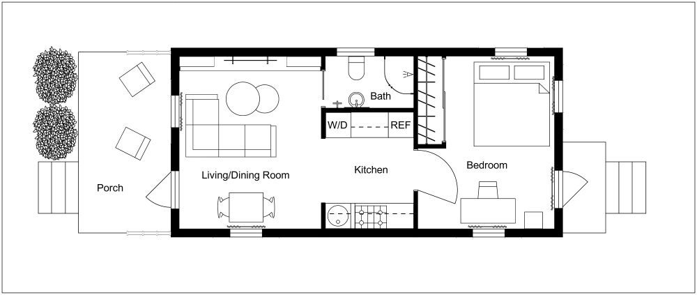
Classic Shotgun House Floor Plan

390 sq ft
36 m²
1 Level
1 Bedroom
1 Bath

Perfect for an individual or couple who prefers a minimalistic lifestyle, this one-bedroom classic shotgun house floor plan makes great use of space, feeling much larger than its 400 square feet. Stepping into the house from your spacious front patio, you'll discover an open-concept living, dining, and kitchen space. Light-colored wood floors and ample windows help brighten up the space, giving it an airy feel. Off of the living room is the bathroom, which has a bright, modern feel including a luxurious glass-enclosed shower. The compact but functional galley kitchen has everything you'd expect in a much larger house, including a washer/dryer! Lastly is the bedroom, which has a large closet and an attached patio, perfect for enjoying your morning cup of coffee.


Made by
Home Designs

Similar Floor Plans


More From This Contributor