30x40 House Plan with Loft

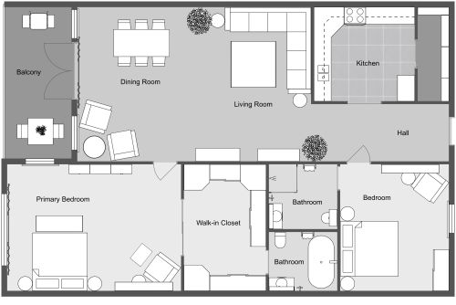
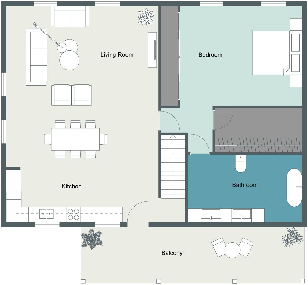
Few 30x40 house plans with a loft are as well-designed for easy living as this home. As you enter, you are greeted by the spacious, open-plan great room. To your left, you will find the well-equipped kitchen, while to the right is the staircase leading to the beautiful loft. The great room offers ample space for living, dining, and entertaining, featuring a very high ceiling. Walk through the door to the right of the great room into the main bedroom, which provides more than enough space for a sitting area. The walk-in closet is expansive, and there is a second closet that is nearly as large. The en-suite bathroom includes dual washbasins and a bathtub. Upstairs, the enclosed loft features two additional en-suite bedrooms, both equipped with walk-in closets. Between these two bedrooms is a cozy sitting room that can serve as a home office or hobby room. To add the final touch, outside the front door, you can enjoy a large tiled patio with plenty of space for family gatherings and entertaining friends.

Made by
Home Designs
1838 sq ft
171 m2
2 Levels
3 Bedrooms
3 Baths

This plan can be customized

Edit This Project

Want to edit this floor plan or create your own?

Download App

Similar Floor Plans


More From This Supplier