White Single Wall Kitchen

292 sq ft
27 m²

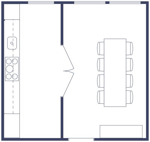
If you've ever dreamed of having an open-concept kitchen/dining room with a modern feel, you'll love this white single-wall kitchen. Stepping into this kitchen, the first thing you'll likely notice is how spacious it is. At nearly 300 square feet, this kitchen has plenty of room to host large dinner parties and still have room for guests to move around and mingle. The kitchen itself has a sleek, modern design, with butcherblock countertops, white cabinetry, and a large stainless steel sink. These light tones perfectly contrast the slate tile floors and the grey walls that give this space a modern feel. You'll particularly love this kitchen design if you enjoy indoor-outdoor living spaces, as one wall is taken up by large sliding glass doors perfect for letting in natural light or fresh air on a crisp spring day.


Made by
Kitchen Designs

Similar Floor Plans


More From This Contributor