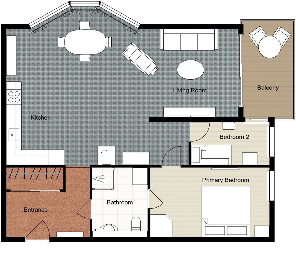
2 Bedroom Condo Floor Plan

911 sq ft
85 m²
1 Level
2 Bedrooms
1 Bath

Great space, very clever open design, beautiful bay window, and a cozy balcony are all included in your 2 bedroom condo floor plan. The entrance area has a huge clothes closet and cabinetry, plus the convenience of direct access to the bathroom. The living room, dining room, and kitchen are open plan, giving you so much choice for laying out your sitting and dining furniture, and making the most of the beautiful bay window. The L-shaped kitchen has all the countertop and storage space you could ever want. There is also a quiet space with a bench and a wood stove in a partially separated section next to the bedrooms. The two bedrooms have their own access vestibule for privacy. The primary bedroom has direct access to the bathroom. The second bedroom could also become an ideal home office or hobby room. The living room and second bedroom both give direct access to the balcony, adding to the condo's convenience and delight.


Made by
Home Designs

Similar Floor Plans


More From This Contributor