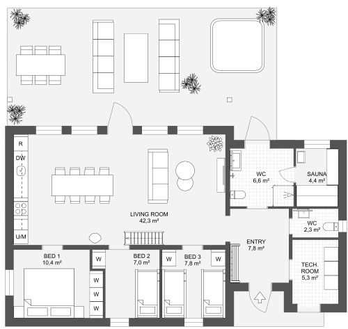
4 Bedroom Floor Plan With Patio

1861 sq ft
173 m²
1 Level
4 Bedrooms
1 Bath
1 Half Bath

This 4 bedroom floor plan with a patio makes indoor/outdoor living and entertaining a breeze. As you enter the front door, notice the convenient coat closet, powder bath, and laundry room. Down the hall, an open plan kitchen, dining, and living room features large sliding glass doors that open to the lovely patio. The u-shaped kitchen is a chef’s dream with its refrigerator, range, double sink, and upper cabinet storage. With a long dining table inside the unit and another on the patio, you have plenty of room for entertaining. The spacious primary bedroom is large enough for a king-size bed, side tables, and a dresser. Nearby, a roomy bathroom features two sinks, a toilet, a double shower, and a separate soaking bathtub. Three generously sized secondary bedrooms, each with a built-in closet, provide the finishing touch on this well-thought-out floor plan.


Made by
Franziska Voigt

Similar Floor Plans


More From This Contributor