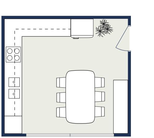
L-Shaped Kitchen Layout With Island

438 sq ft
41 m²

When you have a kitchen, a dining area and a living area in the same space, it can be hard to have a lot of room left over. However, this is exactly what this L-shaped kitchen layout with island manages to accomplish. It has a spacious kitchen with a lot of counter space, cabinets, a range with a wall-mounted chimney and a sink. Across from the counters, there's an island which can be used for food prep as well as eating a freshly prepared meal. To complement the L-shaped kitchen, you can create an L-shaped seating area, large enough to seat five people, in the opposite corner. There are four windows overlooking the kitchen counter which make this space bright and active. Across from the living area is another window with an indoor ledge. Overall, this layout is functional and practical but still spacious.


Made by
Kitchen Designs

Similar Floor Plans


More From This Contributor