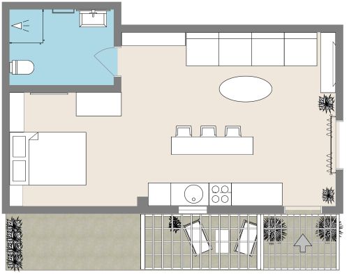
Beautiful Studio Apartment With Large Bedroom Alcove

527 sq ft
49 m²
1 Level
1 Bath

The large bedroom alcove provides space and privacy in this beautiful studio apartment floor plan. The front entrance door leads to a small foyer with wall hooks; consider adding a shoe storage bench as well. Read, converse, or watch TV from the sofa grouping and entertainment center in the open concept living space. Or, relax on the private outdoor balcony. Nearby, the chef remains part of the conversation in the L-shaped kitchen, complete with a refrigerator, double sink, range, and upper cabinet storage. A dining table for 3 can also be used for meal prep or as an extra work area. A long hallway, lined with coveted closet space, leads to a ¾ bathroom followed by a spacious bedroom alcove. Furnish one half of the lengthy room for sleeping, with a king-size or queen-size bed and side tables. Set up the other half of the space as a work area, reading nook, or extra clothing storage.


Made by
Franziska Voigt

Similar Floor Plans


More From This Contributor