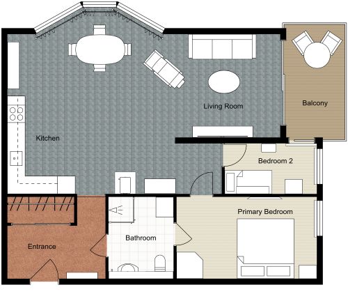
2 Bedroom Floor Plan With Blush Décor

871 sq ft
81 m²
1 Level
2 Bedrooms
1 Bath

There's a relaxing and romantic feel in this 2 bedroom floor plan with blush décor which is decorated in various shades of pink and magenta. The master bedroom has a double bed, a chair, and a large closet, while the children's bedroom has a twin bed, a workstation, and a closet. There's a spacious bathroom with a shower, a sink, and a toilet. The living area has a loveseat, an armchair, and two extra chairs, all in shades of pink, with multicolored cushions. There's also a dining table with four chairs in the same room and an L-shaped kitchen with a cooking range, a sink, a refrigerator, and cabinets. The balcony has a coffee table with four chairs, and there's a bench with cushions as well as a side table at the entrance. There's also an extra small room which can be used for storage.


Made by
Franziska Voigt

Similar Floor Plans


More From This Contributor