3 Story Duplex Floor Plan

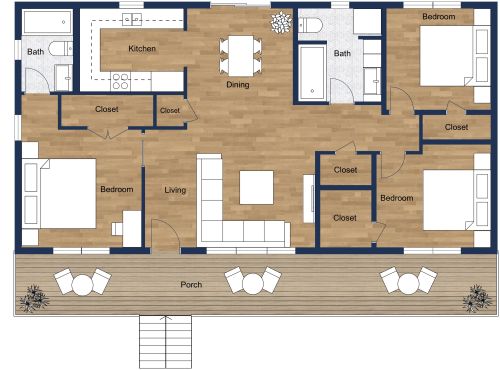
This 3 story duplex floor plan shows various layouts for the same basic footprint: one unit offers a living room with soaring ceilings and 2 bedrooms, while the other duplex offers a 3rd bedroom above the living room. Each duplex’s ground floor features the exact layout - a front porch, entry foyer/drop zone, home office, mechanical room, and garage. The middle floor of one unit includes a coat closet at the top of the stairs, a split kitchen layout with the pantry across the hallway, and an expansive kitchen island. The living room in this layout features soaring ceilings up to the roof.

The same level of the other duplex offers a dining nook at the top of the stairs and moves the coat closet and pantry closer to the kitchen space. The living room has standard height ceilings. On the top floor, one duplex layout features an open landing with views of the living room below and a primary bedroom with a private deck, a spacious walk-in closet, and an ensuite ¾ bathroom. The other duplex adds an additional secondary bedroom or optional office on this floor.

1686 sq ft
157 m2
3 Levels
3 Bedrooms
2 Baths

This plan can be customized

Edit This Project

Want to edit this floor plan or create your own?

Download App

Similar Floor Plans


More From This Supplier