2 Story 4 Bedroom Layout

2068 sq ft
192 m²
2 Levels
4 Bedrooms
3 Baths

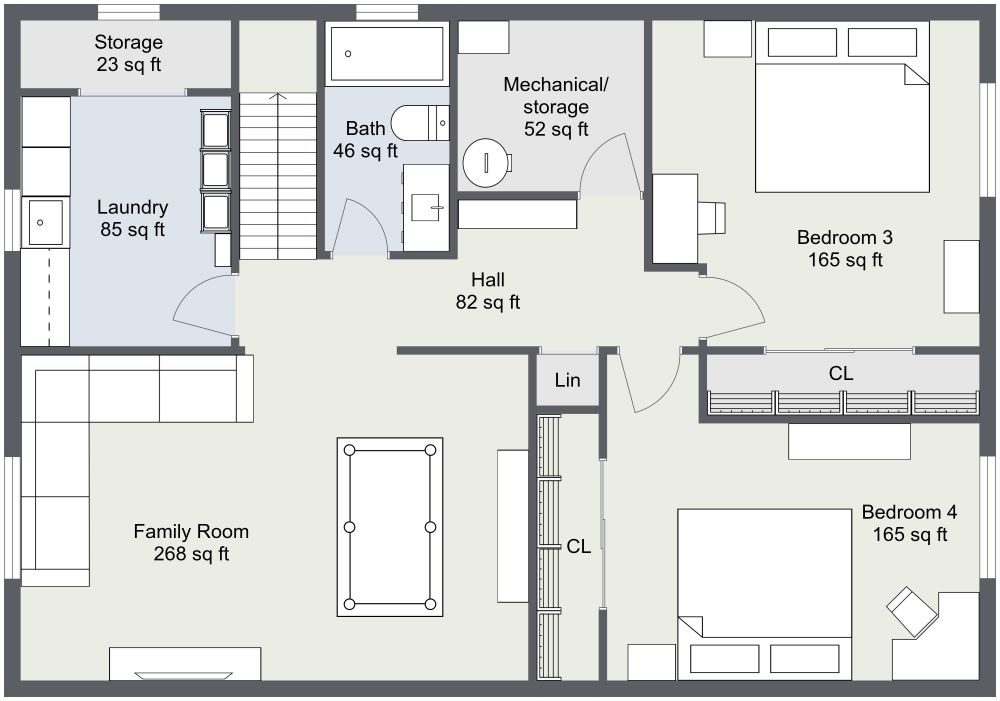
The finished basement in this 2 story 4 bedroom layout allows for lots of living space while minimizing the height of the building above ground. An open-plan layout offers plenty of room for cooking and entertaining on the ground floor. Chefs will appreciate the kitchen's huge pantry, as well as the convenient breakfast bar, range, double sink, large refrigerator, and upper cabinet storage. On the right side of the floor plan, the spacious primary bedroom features a walk-in closet and ensuite bathroom with two sinks, a toilet, and a shower. Furnish the nearby secondary bedroom as an office, nursery, or den—many possibilities. Downstairs, the basement includes an ample gathering space perfect as a family or game room. Two roomy bedrooms, each with spacious closets, share a nearby full bathroom. Rounding out this plan, you'll find a large laundry room plus several storage areas.



Similar Floor Plans


More From This Contributor