Harmoni 94

1006 sq ft
94 m²
1 Level
3 Bedrooms
1 Bath
1 Half Bath

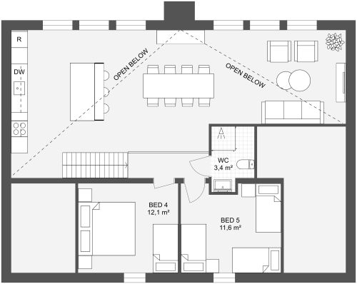
The Harmoni 94 is an L-shaped layout that we imagine as the perfect vacation home for family plus guests. The large entry, set up with shelves and several closets, provides lots of storage for typical holiday gear. An adjacent powder bathroom is a handy feature. The open concept main area includes a living room, large dining table, and full-featured kitchen with all the appliances a cook appreciates. Large windows and glass doors showcase the view and a large deck. The spacious primary bedroom fits a queen or king-size bed. Nearby, a full-featured bathroom includes a sink, toilet, shower, washer/dryer unit, linen closet, and the best part - a sauna for complete relaxation. Set up the other two bedrooms in various ways; currently, they include multiple bunk beds - get ready for guests!


Made by
Bra Hus

Similar Floor Plans


More From This Contributor