Harmoni 100

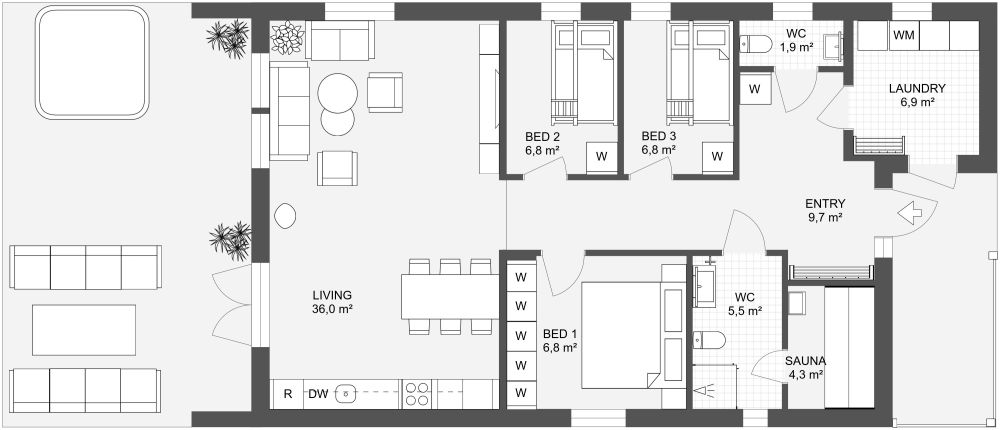
The Harmoni 100 is a stylish and functional 3 bedroom, 1.5 bathroom layout for indoor/outdoor living. One favorite feature is the direct laundry room entry right from the front porch. Sandy beachwear, muddy boots, rain gear – drop them all out of sight in your mudroom! The front foyer includes shelves, a coat closet, and a convenient ½ bathroom. Across the hall, a ¾ bathroom contains a sink, toilet, shower, and a door to a comfortable sauna. The primary bedroom has a queen or king-size bed, side tables, and lots of closet space. Configure the two smaller bedrooms as you like with single or double beds, bunk beds, or as an office or art studio. The spacious open living area includes a furniture group, a large dining table, and a single-wall kitchen. Enjoy the large windows and glass double doors which lead to a comfortable patio or deck.

Made by
Bra Hus
1070 sq ft
99 m2
1 Level
3 Bedrooms
1 Bath
1 Half Bath

This plan can be customized

Edit This Project

Want to edit this floor plan or create your own?

Download App

Similar Floor Plans


More From This Supplier