Villa Lycka 143

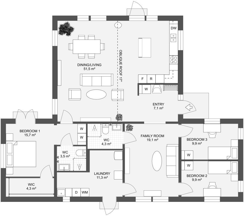
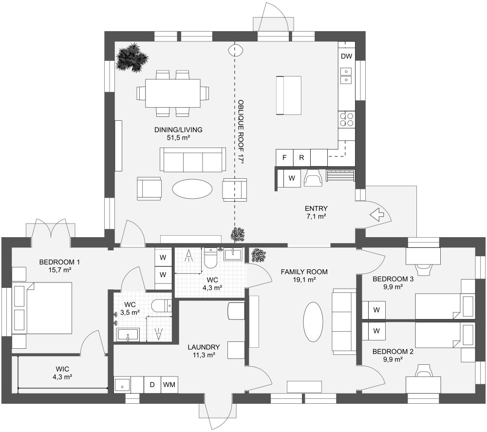
Enjoy the flexible open concept living space and split bedroom layout of the Villa Lycka 143 floor plan. A front porch leads into a convenient entry foyer complete with a coat closet, chair, and shelf space. The expansive great room has soaring ceilings, a fireplace, and large windows that open to the yard. Nearby, the gorgeous L-shaped kitchen with a large island offers a full-size refrigerator, range, sink, dishwasher, and upper storage cabinets. The lovely primary bedroom suite offers french doors to a back patio, a large walk-in closet, and a ¾ bathroom with sink, toilet, and shower. Near the two secondary bedrooms, set up the flexible family room as a teen room, kids playroom, or office/study area. This part of the layout also includes a ¾ bathroom and a spacious laundry room with a washer/dryer, customizable open areas, and a convenient exit door to the outside.

Made by
Bra Hus
1641 sq ft
152 m2
1 Level
3 Bedrooms
2 Baths

This plan can be customized

Edit This Project

Want to edit this floor plan or create your own?

Download App

Similar Floor Plans


More From This Supplier