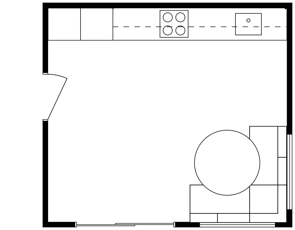
Classic Style Single Wall Kitchen

There's something about minimalist home design that can make any space feel fresh and inviting. This classic style single wall kitchen proves that your living spaces don't have to be ornate or over-the-top to be impactful. Everyone who steps foot into your home will surely appreciate the white-on-white countertop and cabinetry combination that contribute to this kitchen's contemporary yet welcoming vibe. Light hardwood floors are the perfect complement to this room's clean yet homey aesthetic, providing the ideal backdrop for countless home decor styles. Because the entire kitchen only lines one wall of the room, it becomes a surprising yet charming focal point for the space. Likewise, there's ample space to bring in a small rolling island for your cooking needs as well as a dining set or other seating arrangement beneath the kitchen's bright corner windows. If you favor classic, distinct interior design, this kitchen was made for you.

Made by
Kitchen Designs
189 sq ft
18 m2
1 Level

This plan can be customized

Edit This Project

Want to edit this floor plan or create your own?

Download App

Similar Floor Plans


More From This Supplier