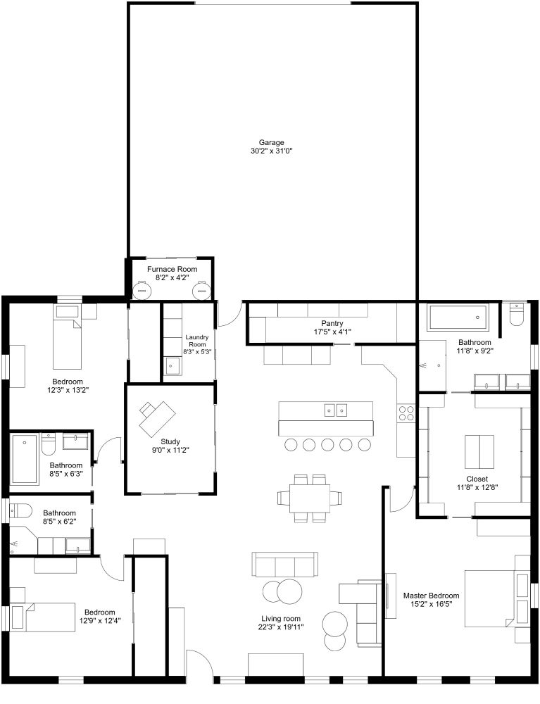
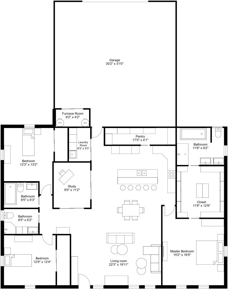
Barndominium House Plan Model 4266 Kayla

2164 sq ft
201 m²
1 Level
3 Bedrooms
3 Baths

With an expansive great room, split bedroom layout, and separate office or study, the barndominium house plan model 4266 Kayla provides comfortable living. From the front door, enter into the spacious main living area; an L-shaped kitchen with a large island/breakfast bar offers plenty of room for cooking and entertaining guests. Chefs will be drawn to the vast panty - customize the shelves and cabinets to suit your cooking and storage needs. With 2 sets of large double doors, an adjacent study can be left open for conversation or closed for privacy. Alternatively, furnish this flexible space as a den, teen room, or playroom. On the right side of the floor plan, a sizable primary suite features a huge walk-in closet and full bathroom with double sinks and separate shower and bath facilities. On the left side of the layout, two secondary bedrooms have built-in closet storage and access to two separate bathrooms. A laundry room and oversize garage complete this layout.


Made by
Barndos

Similar Floor Plans


More From This Contributor