Transform Your Basement: Floor Plans and Design Ideas
Want to turn your basement into something special? These basement floor plan ideas will help you visualize your space and create a layout that works.

Have you wanted to expand your home? A finished basement with heating and cooling, electricity, and finished walls and flooring adds valuable space and raises the property's value.
Popular Basement Uses
Here’s a look at some of the most popular basement floor plan options, with tips and ideas.
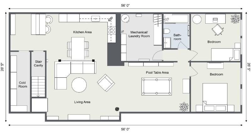
Game room
A ping pong or pool table requires a larger room than found in the average home, so how about converting your basement into a game room? As you lay out your design, remember to allow at least 5 ft (1.5 m) around each side of a pool table and 3-4 ft (1m) around a ping pong table.
Other popular and smaller game room options are foosball, air hockey, darts, and pinball. Add a square or round table and chairs if your family enjoys cards and board games.

Family room
Finishing a basement as a simple open-concept family room space (without adding a bathroom or kitchen) is one of the least expensive ways to develop your basement area. Furnished with couch seating, a TV, and storage for games and toys, you’ve got a relaxed area away from the main living space.
Guest room, in-law suite, or rental unit
Converting your basement into a bedroom suite may be the perfect option if you've needed extra space for guests or in-laws. Ideas to consider: At a minimum, plan for a bedroom, closet, and a ¾ bathroom.
Consider a seating area, mini-kitchen or wet bar area, and a full-size bathroom if you have the space.
It’s also a good idea to offer separate heating and cooling. When converting a basement into a bedroom, check the local building codes in your area - most will require two entrances/exits to the space.
For example, the basement entrance from the house and an egress window no more than a certain height off the ground (check your local regulations).

Wine cellar/tasting room
Would you love to share your wine-tasting hobby with family and friends? Imagine rows of your favorite wine bottles chilled to perfection and beautiful cabinets for your wine glasses.
A bar area allows you to chat with friends while you serve drinks, and a comfortable sofa is another great option. Finish with warm and cozy decor for the ultimate entertaining area.
Kids playroom or teen room
If you have kids, turn your basement space into a playroom and convert it into a teen hangout spot as they age. For younger children, consider a kid's height table and chairs, toy storage, a bookshelf, a craft area, and a place to hang their artwork. As they grow, add taller desks for homework, a TV, and comfortable couches for teen hangouts.

Music practice space
A dedicated music space is a dream for those who love to create music. Add soundproofing to the walls and ceiling, plenty of electrical outlets, a desk or table for equipment, and storage for various musical instruments and gear. Finish off the room with concert posters, or hang your guitars on the wall.
Media room or home theater
For movie buffs, a dedicated theater room is a great basement option. In addition to that large-screen TV, consider extra electrical outlets, Wi-Fi access, and built-in surround sound for upgraded audio.
As you build out the room, upgrades include adding additional sound insulation to the walls and a raised floor section for tiered seating. Check out leather reclining seating for the ultimate movie theater experience.
If you have the space, a wet bar area with a mini fridge is an excellent option for those movie treats, and if the basement has windows, be sure to consider room-darkening curtains.

Laundry room, mud room, and storage
A large laundry/mud room and indoor drying area are perfect home additions in cold climates. You can also include storage cabinets, a drop zone, or a large closet - perfect for sleds, skis, boots, and other bulky items.
Gym or workout area
A basement gym is a great option to exercise at home. The space can be as simple as free weights, a space for stretching and yoga, plus a mirror, or it could include equipment such as a treadmill, exercise bike, rowing machine, or integrated weight machine.
If you do include gym equipment, two things to keep in mind: Be sure to plan a route for bringing large equipment into the space, and check that the ceiling height accommodates you when standing on top of a treadmill or stair machine.

Workshop or craft area
A basement craft area is a popular option for those who want to keep a potentially messy workshop area out of sight from the main living area. Depending on your needs, add a large work table, a sewing area, a workbench, or custom storage.
Home office
Do you dream of a dedicated home office away from the household bustle? For this layout, plan for multiple electric outlets and strong Wi-Fi access as you design your space.
Consider extra soundproofing in the walls and ceiling to block family noise or if you spend a lot of time on video calls. Extras may include a wet bar, a coffee area, a mini fridge, and a powder bath.
As you plan the furnishings, consider a large desk, shelf space, file cabinets, and a credenza to store supplies and provide a place for a printer.

Combination
If your space is large enough, create a basement floor plan with multiple rooms to combine several of the above functions. For example, a family room, a game room, and a guest suite.

Create Your Floor Plan with RoomSketcher
Make your basement remodel easier by planning it in RoomSketcher first.
- Draw floor plans with precise measurements and dimensions
- Plan layouts using clear 2D Floor Plans for every detail
- Visualize your design in realistic 3D
- Experiment with furniture and materials
- Share your projects with builders, contractors and designers
Related Articles

Studio Apartment Layouts and Floor Plan Inspiration
A studio apartment combines living, dining, and sleeping into one main room. Learn how to design a floor plan that works, from common layouts to clever storage and decorating ideas.

One-Bedroom House Plans: Uses, Benefits, and Layout Ideas
One-bedroom house plans offer the perfect balance of comfort and practicality. With open layouts and clever storage solutions, a one-bedroom plan can feel surprisingly spacious while staying affordable.

How to Plan and Design a Tiny House
The Tiny House Movement is gaining popularity, with the appealing idea of living a simpler life in a simpler place. A “tiny house” is a very small dwelling, usually less than 400 square feet (about 40 m2).