How to Plan the Perfect Primary Bedroom
The primary bedroom is the heart of a home’s private space. As the largest and most comfortable bedroom, it should be both functional and inviting.

The primary bedroom is often the largest and nicest bedroom in a house or apartment.
Ideally, it's a beautiful, well-designed space in which the owner(s) of the property can wake up, prepare for their day, and return for rest and relaxation.
A basic primary bedroom floor plan will include a bedroom, closet space, and may have an attached bathroom.
The possibilities from there are virtually endless. A luxurious primary bedroom suite may include his and her walk-in closets, a sitting area, a fireplace, and access to the outdoors via either a balcony or a patio.
In the bathroom portion of a high-end master suite, you may see a double sink, a soaking bathtub plus a shower, a separate toilet room, and much more.
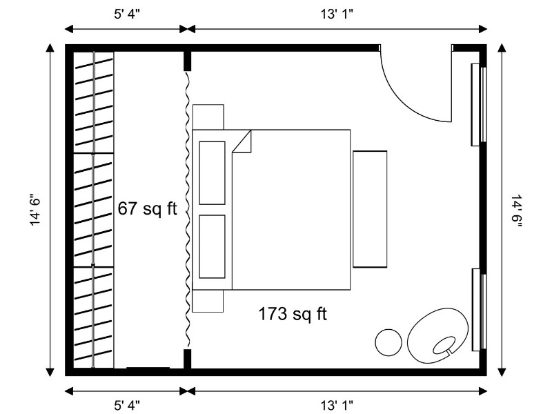
Typical Primary Bedroom Size
The average primary bedroom size is close to 300 square feet (approx. 28 m2) and gets smaller or larger depending on the size of the home - the size is closer to 200 square feet (18 m2) for smaller homes and closer to 400 square feet (37 m2) for larger homes.
If you plan to choose a king-size bed, you'll need a minimum size of about 12 x 10 ft (4 x 3.5 m), but that will be a tight squeeze as far as adding much other furniture.
Luckily, the average size primary bedroom is close to 14 x 20 feet (4 x 6 m), which can accommodate a large bed, nightstands, plus a dresser, chair, and even other pieces of furniture.

Layout Tips
Bed placement and nightstands
A typical primary bedroom will include a king- or queen-size bed, whose location is often dictated by the placement of doors and windows.
Make sure the plan allows a good spot for the bed, ideally with enough space for a nightstand on each side.
For smaller rooms, consider beds with built-in nightstands.

Designing for two people
Since primary bedrooms are often shared, think through how both people will use the space.
If one person gets up earlier, a layout with a vestibule entrance can allow access to the bathroom and closet without disturbing the other person’s sleep.
Creating a retreat or multi-use space
Will your bedroom be a true retreat where you can read or relax by a fire? If so, look for space in the layout to create a cozy nook with a couple of chairs, a sofa, or a chaise.
If your bedroom needs to double as a home office or even a small gym, make sure the floor plan accommodates these uses.

Balancing space and function
If both people follow similar routines, or if the home is smaller, the area used for a vestibule may be better allocated to expand the bedroom, closet, or bathroom.
Consider how to best use the available square footage for your lifestyle.
The Primary Bathroom and Closets
As far as the layout for the primary bathroom, with some planning, you can create a pleasurable space in which to complete your grooming activities.
From shaving and brushing teeth to applying makeup and drying hair, to soaking in a deep bathtub, or doing a manicure - what are your top wants and needs?
During the design phase, consider what's most important to you and ensure that you have good lighting and mirrors, easy access to power, and convenient locations and storage so that you can perform your grooming activities easily and pleasurably.
For the closet space, do you prefer his and her closets, so that you don't have to see your partner’s organization system (or lack of one!). Or will one shared closet work for your needs?

Create Your Bedroom with RoomSketcher
With RoomSketcher, you can design and visualize your layout quickly and accurately, giving you confidence in your choices before you commit.
- Draw your floor plan in minutes
- Place furniture with accurate measurements
- Test different layouts quickly and easily
- Visualize your design in 2D and 3D
- Share with family, contractors, or designers
Related Articles

Bedroom Floor Plans: Ideas and Layouts for Every Space
Bedrooms come in many shapes and sizes, but the key to a successful design is a thoughtful floor plan. Here are some ideas to inspire layouts for children, teens, guests, and adults alike.

Bathroom Floor Plans: Layouts, Sizes, and Ideas
The design of your bathroom is something that should be carefully planned. After all, a functional and beautiful bathroom can make a big difference in how you start and end your day.

Top 8 Two-Bedroom Apartment Floor Plans
A second bedroom can be anything you need: a guest room, a kids' room, an office, or even a hobby room. We've made eight layouts to show you the possibilities.