Two-Bedroom House Plans: Tips, Layouts, and Inspiration
Two bedroom house plans are a popular choice for many homeowners. They’re affordable to build, flexible to live in, and can fit a wide range of lifestyles.

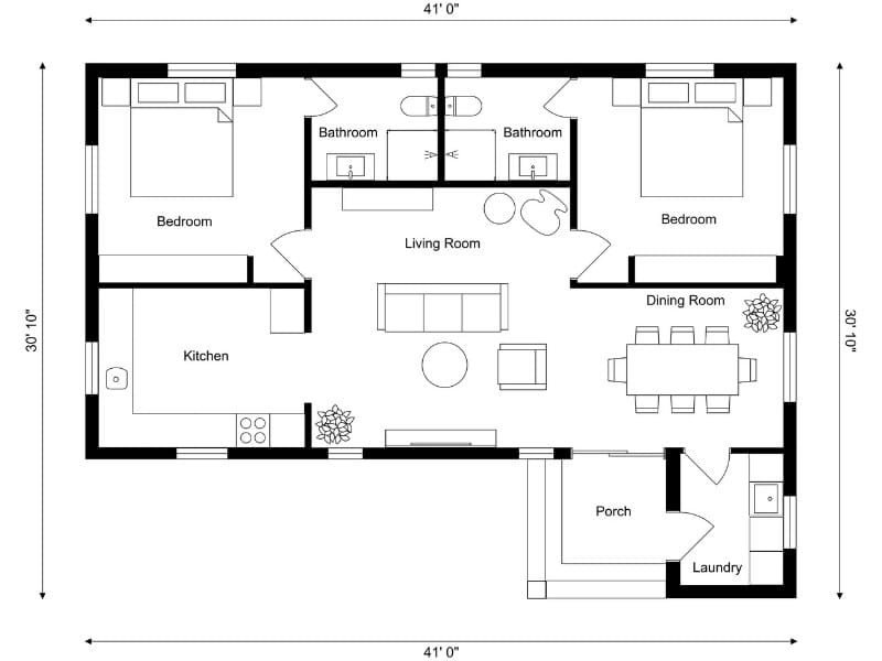
What Is a Two-Bedroom House Plan?
A typical two-bedroom house plan ranges from 800–1500 sq ft (about 74–140 m²) and usually includes 1, 1.5, or 2 bathrooms. Most are single-story homes, but two-story options are also available if you need more space or have a smaller lot.
| Feature | Details |
|---|---|
| Size range | 800–1500 sq ft (74–140 m²) |
| Number of bathrooms | 1–2 |
| Stories | Usually 1, sometimes 2 |
| Typical uses | Starter home, vacation cottage, or ADU |

Why Choose a Two-Bedroom House Plan?
Two-bedroom homes are generally more affordable than larger houses, thanks to lower construction costs and lot size requirements. Yet, they can still include many of the same desirable features, such as open-concept living, large kitchens, and even ensuite bathrooms.
You’ll often find two-bedroom homes used as:
- Starter homes for singles or couples
- Vacation cabins, cottages, or bungalows
- Accessory Dwelling Units (ADUs) on larger properties
Starter Homes
For those entering the housing market, a 2 bedroom plan can be the perfect fit. Here are two common layouts:
- Two primary bedrooms
Each bedroom has an ensuite bathroom, ideal for roommates or owners who want to rent one room for extra income. - One primary + one flex room
Use the second bedroom as a guest room, home office, or nursery. It can easily change as your needs do.
💡Plan for the future
Consider a single-story layout if you plan to stay long term. It’s easier to move around and more accessible for all ages.

Vacation Cottages
A two-bedroom layout is also great for a vacation home. It's roomy enough for comfort, yet compact and easy to maintain.
Example setups:
- Family getaway
One main bedroom for adults, one with twin beds or bunks for kids. - Guest-friendly
Two equal bedrooms for couples, or a second room that converts with a fold-out couch or daybed. - Extra sleeping space
Add a pull-out sofa in the living area to host up to six people.
If you expect guests often, look for a plan with 2 or 2.5 bathrooms to avoid morning traffic jams.

Accessory Dwelling Units (ADUs)
With rising housing costs, many homeowners are turning to ADUs for added income or family space.
A two-bedroom ADU can work well as a rental unit, multi-generational housing, or a flexible studio.

Top Design Tips
As you explore house plans, keep these tips in mind:
- Choose your layout wisely
Single-story designs are accessible and easy to maintain. Two-story options save yard space. - Think outdoor living
A covered porch or patio adds valuable space for relaxing and entertaining. - Add height and light
High ceilings and large windows make smaller homes feel more spacious. - Plan for storage
Built-ins or attic access can help you stay organized.

Create Your Floor Plan with RoomSketcher
With RoomSketcher, you get the best of both worlds — professional accuracy and easy-to-use tools.
Draw your layout with precise measurements, drag and drop furniture, and customize every detail to match your vision.
Once your layout is complete, you can generate professional floor plans, capture realistic 3D Photos, and walk through your design in Live 3D before sharing it.
But don't just take our word for it. Create an account today and see how easy it is to create professional results.
Related Articles

Top 8 Two-Bedroom Apartment Floor Plans
A second bedroom can be anything you need: a guest room, a kids' room, an office, or even a hobby room. We've made eight layouts to show you the possibilities.

What to Know About House Plans Under 1500 Sq Ft (140 m²)
Small house plans, such as those under 1500 sq feet (or 140 m²), are becoming increasingly popular as more people seek affordable, low-maintenance homes. These compact floor plans are perfect for individuals, couples, or families looking for a cozy living space that is easy to maintain.

One-Bedroom House Plans: Uses, Benefits, and Layout Ideas
One-bedroom house plans offer the perfect balance of comfort and practicality. With open layouts and clever storage solutions, a one-bedroom plan can feel surprisingly spacious while staying affordable.