Finished Basement Layout Idea

1470 sq ft
137 m²
1 Level
1 Bedroom
1 Bath

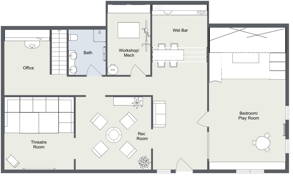
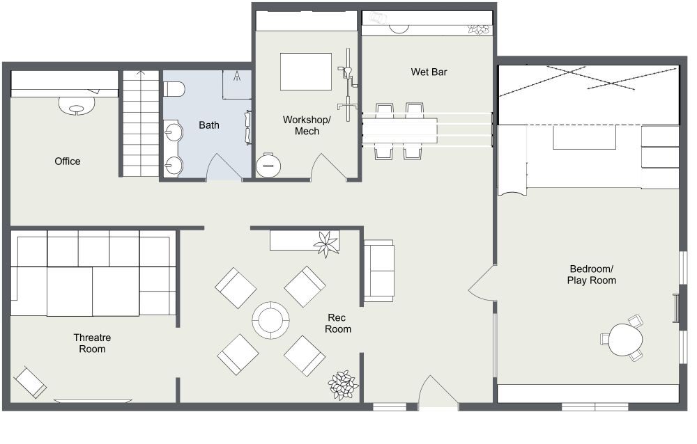
The textured hardwood floors and comfortable furniture give this finished basement layout idea a homey feel. In one corner of the layout is a home office with a desk, a chair, and a cream-colored rug. There's also a living area with a modular sofa that can be pulled apart when more seating is needed. There's an additional seating area with four armchairs and a coffee table. There's a kitchen with a counter and a sink, as well as an island with four stools. The bathroom has a shower, a toilet, and twin sinks. There's a bedroom with a double bed and a play area with a slide, a climbing ladder, a table with three chairs, and plenty of play room. There's also a small room with some gym equipment, a coffee table, and some storage. Overall, this finished basement layout idea has enough space for an entire family.


Made by
Home Designs

Similar Floor Plans


More From This Contributor