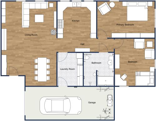
Floor Plan with Wheelchair Accessible Bathroom

775 sq ft
72 m²

There’s nothing ordinary about this 75 m² home. Featuring one bedroom, its floor plan includes a wheelchair accessible bathroom. Eye-catching hardwood floors line the open-concept living space, encompassing a spacious living room, dining area, and kitchen. The kitchen features an L-shaped granite countertop, stainless steel appliances, and bright orange cabinetry. Bold pops of color can also be found in the living room, with eclectic, colorful sofas. The living room boasts tan carpeting, dark wood furniture, and green accents. The wheelchair accessible bathroom showcases orange-detailed tile flooring, soft gray walls, and stone fixtures, including a modern bathtub. Whether you hope to entertain or spend leisurely days at home, this inviting floor plan is perfect for making any occasion feel special.



Similar Floor Plans


More From This Contributor