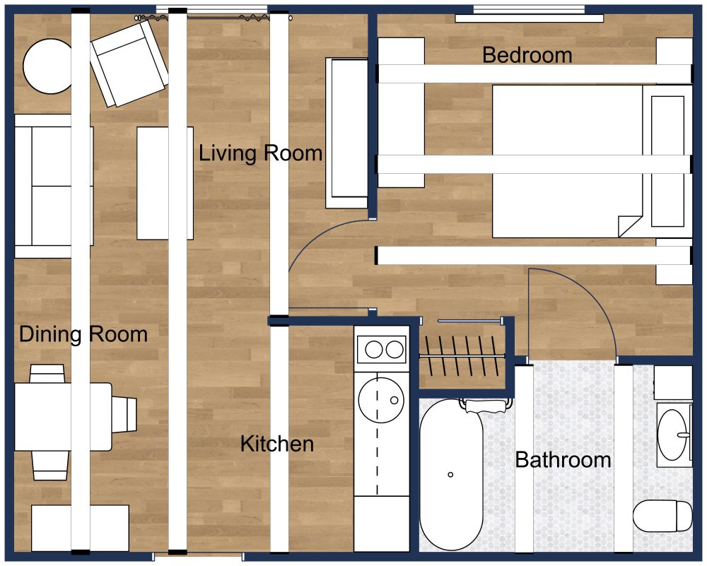
Retirement Cottage Floor Plan

454 sq ft
42 m²

Downsizing in retirement doesn't have to mean sacrificing your lifestyle. If you're looking for a compact yet functional retirement home, consider this retirement cottage floor plan. At just under 500 square feet, this cozy home features a dedicated dining space with seating for four, a compact kitchen with a sink, refrigerator, and stove, and a spacious living room. Its open floor plan and ample natural light create the illusion of a larger space. The living room flows seamlessly into the beautifully appointed bedroom, which includes a queen bed and matching nightstands. The bedroom connects to a stylish bathroom with a large vanity and an oversized soaking tub, giving this retirement cottage a spa-like feel.



Similar Floor Plans


More From This Contributor