Full Bathroom Floor Plan

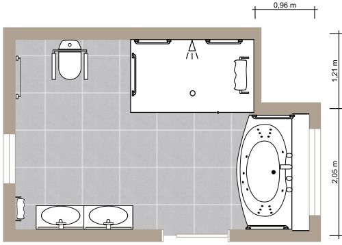
Every day can feel luxurious when you pamper yourself in this full bathroom floor plan. The open-concept space includes a variety of alcoves that provide a bit of separation between areas. The doorway leads to a vanity, complete with cabinets on the sides and a mirror in the middle. Around the corner lies a pair of double sinks, a second vanity, and a glass walk-in shower. A silver tub sits in front of a large window, separated by two white pillars. The toilet is tucked in the corner of the bathroom in a private room with its own sink and mirror. Gray tile flooring and blush walls give the room a soft yet elegant aesthetic. This bathroom feels extra special with two chandeliers and thoughtful details, such as striped wallpaper.

Made by
Andrea Platzer
324 sq ft
30 m2
1 Level

This plan can be customized

Edit This Project

Want to edit this floor plan or create your own?

Download App

Similar Floor Plans


More From This Supplier