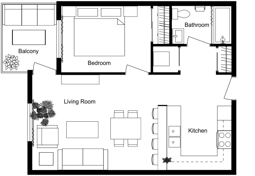
Small Condominium Floor Plan​

587 sq ft
54 m²
1 Level
1 Bedroom
1 Bath

This small condominium floor plan is modern, warm, and stylish, offering a chic aesthetic and effortless functionality. Upon entering, you'll notice an open-concept layout with a hall closet and full bathroom to your right. The kitchen features U-shaped black marble counters that flow smoothly into the dining area and living room. The single bedroom is located across from the living room and includes access to a cozy outdoor balcony. Throughout the living spaces, you'll find rich hardwood floors, while the bedroom is carpeted with tan tones. The bathroom features gray tiles. The walls combine white and black, creating a neutral yet striking ambiance that adds to the floor plan's contemporary charm.


Made by
Home Designs

Similar Floor Plans


More From This Contributor