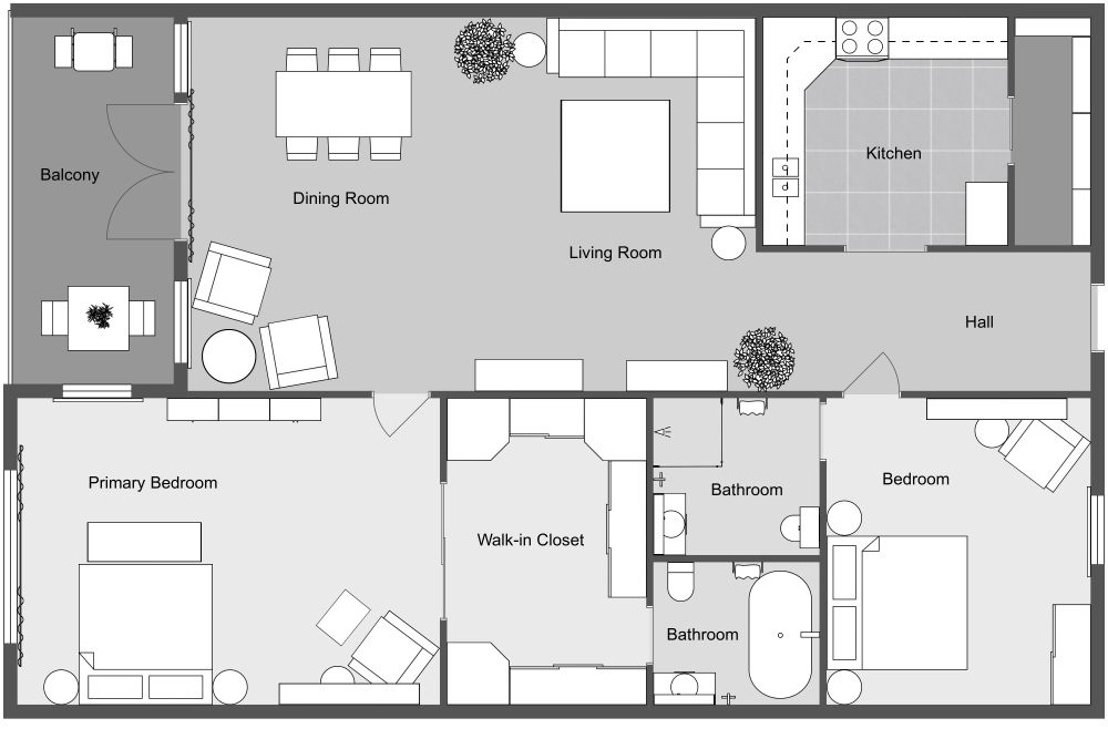
1500 sq ft Condo Floor Plan

1507 sq ft
140 m²
1 Level
2 Bedrooms
2 Baths

This sleek, modern, and inviting 2-bedroom, 2-bathroom condo floor plan spans 1500 sq ft. Upon entering, you'll find a long hallway with the kitchen to your right. The kitchen features L-shaped countertops, modern cabinets, and a spacious separate pantry. Further down the hall is the connected living room and dining area, offering an open layout with plenty of space for seating and furnishings. French doors lead from the living room to a large outdoor balcony with grey stone flooring. The two bedrooms and bathrooms are located in opposite corners of the condo. The primary bedroom includes a personal bathroom and a large walk-in closet. Both bedrooms have dark gray carpet flooring, creating a sophisticated look. The bathrooms feature elegant gray marble flooring.


Made by
Home Designs

Similar Floor Plans


More From This Contributor