Smultronstället 129

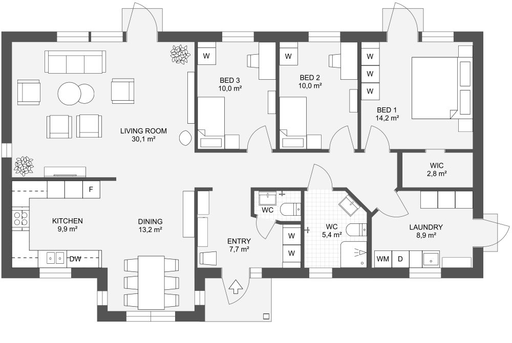
If you prefer a private kitchen and dining area separate from your living room, explore this Smultronstallet 129 layout. The spacious entrance foyer, styled with a coat closet plus a handy chair and shelves, creates a perfect drop zone for shoes and other accessories. Nearby, you’ll find a convenient powder bath. The lovely large living room has windows and a glass door to access the backyard. Chefs will enjoy the adjacent U-shaped kitchen, which puts all your favorite appliances within reach. A bright, light-filled dining area with windows on 3 sides allows you and your guests to enjoy the view. You’ll find 2 secondary bedrooms and a spacious primary bedroom with a walk-in closet and outdoor access down the hall: a nearby customizable full or ¾ bathroom and large laundry room complete this layout.

Made by
Bra Hus
1478 sq ft
137 m2
1 Level
3 Bedrooms
1 Bath
1 Half Bath

This plan can be customized

Edit This Project

Want to edit this floor plan or create your own?

Download App

Similar Floor Plans


More From This Supplier