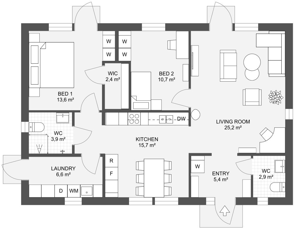
Smultronstället 94

1085 sq ft
101 m²
1 Level
2 Bedrooms
1 Bath
1 Half Bath

The Smultronstallet 94 floor plan is thoughtfully designed to maximize the space. We love its multiple entrance doors that work well for indoor/outdoor living. From the front door, enter into a handy foyer, complete with shelf and closet space for your purse, shoes, or backpack. A convenient half bath with a sink and toilet is on your right. The large living room provides space for a sofa layout plus additional room for a desk, piano, or other items of your choice. A door leads from the living room to an optional deck or patio. The kitchen includes a full-size refrigerator, coveted pantry, a range, double-oven, sink, and upper cabinet storage. The spacious laundry room has additional storage, a utility sink, washer/dryer, and an exit door for easy access to hanging laundry outside. A primary bedroom includes a walk-in closet plus an additional wardrobe or dresser area. A door allows access to an outside balcony or patio. Set up the smaller second bedroom with bunk beds for children, a large bed for guests, or an office or craft room.


Made by
Bra Hus

Similar Floor Plans


More From This Contributor