Harmoni Parhus

1048 sq ft
97 m²
2 Levels
4 Bedrooms
2 Baths

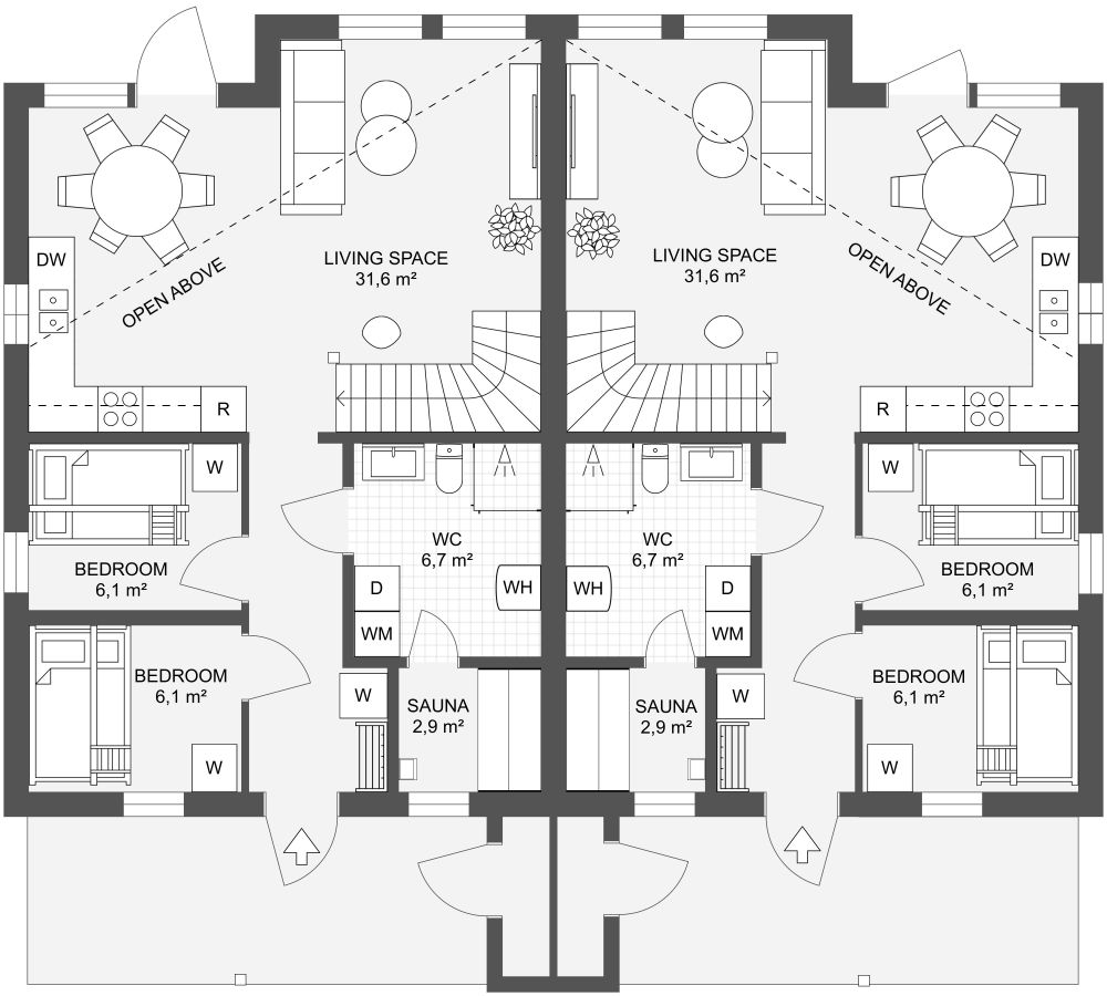
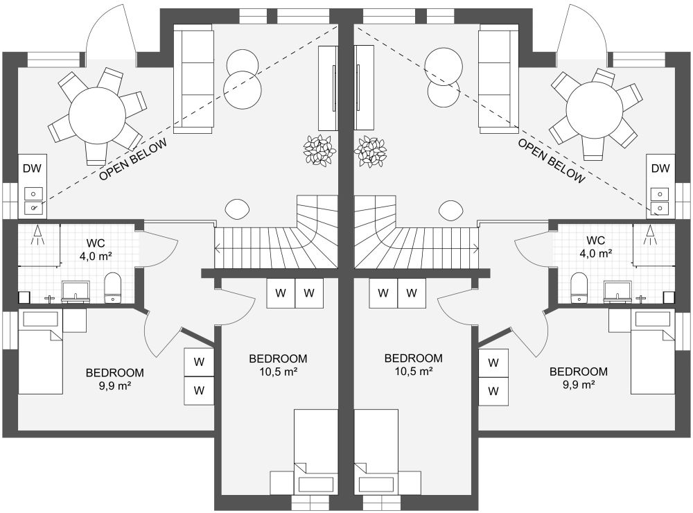
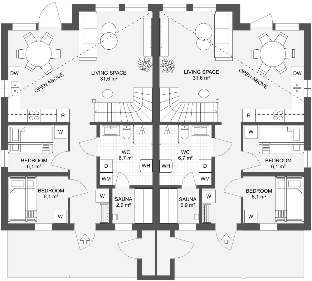
This modern Harmoni Parhus duplex offers a surprisingly spacious feel while coming in at just over 1,000 square feet. The two-level layout maximizes space, featuring four bedrooms and two bathrooms. As you enter, you're greeted by two cozy bedrooms and a large bathroom on the ground floor. The bathrooms are standout features, boasting modern designs with slate tile floors and walk-in rain showers enclosed in glass. The downstairs bathroom even includes a sauna, adding a touch of luxury. The heart of the home is the open-concept living area, comprising an L-shaped kitchen, ample dining space, and a comfortable living room. Vaulted ceilings extending to the second floor create an airy atmosphere, making the space feel larger than its actual size. Upstairs, you'll find two more spacious bedrooms and a second bathroom, completing this well-designed floor plan. The layout efficiently utilizes every square foot, offering a perfect blend of comfort and functionality for modern living. This Harmoni Parhus design showcases how thoughtful planning can create a home that feels expansive and luxurious, even within a modest footprint.


Made by
Bra Hus

Similar Floor Plans


More From This Contributor