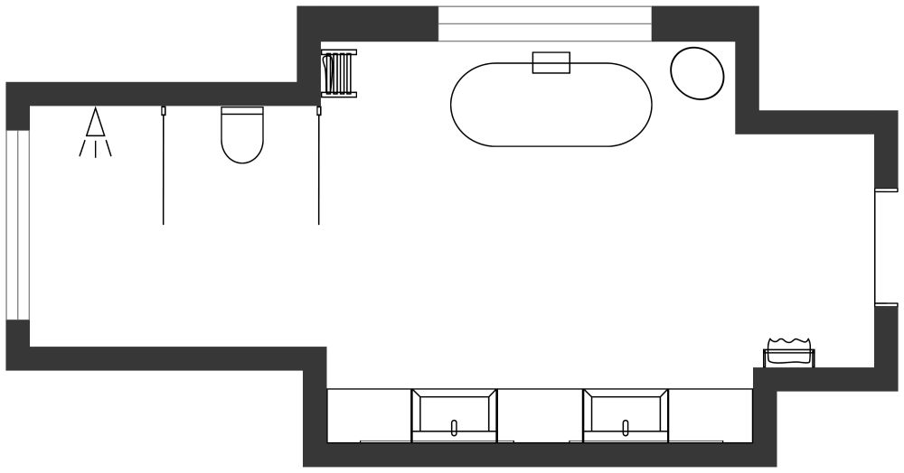
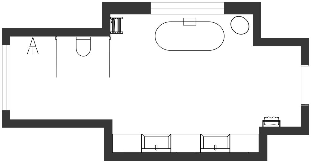
Full Master Bathroom Modern Design

206 sq ft
19 m²

This full primary bathroom showcases modern design at its finest. The floor plan features a swing door entering a long, rectangular space with a bump out on each side. On the left, dual sinks are a welcome option for two people sharing a primary bathroom. On the right, a sleek freestanding tub, iconic to modern bathroom design, gets premier placement next to a large view window. Farther along, a semi-private toilet and walk-in shower complete the layout. Modern design is elegant, sleek, and minimal. This bathroom uses a neutral color scheme of white and light gray with touches of black for contrast. The floating vanity and toilet are a hallmark of modern style and make floor cleaning a breeze. Geometric shapes bring visual interest - notice the herringbone wall tile layout, offset floor tile, and 3 oblong pendant lights.


Made by
Andrea Platzer

Similar Floor Plans


More From This Contributor