How to Create an Efficient Small Office Floor Plan
A well-planned small office can be surprisingly flexible. With the right layout, you can create space for focused work, client meetings, and even future growth.

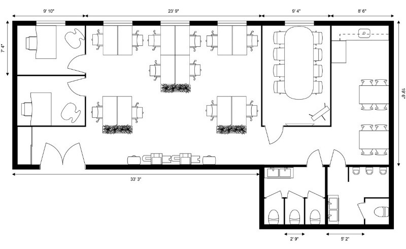
Small office floor plans are generally used by companies and businesses with ten employees or fewer.
One example - a small firm of professionals who consult with local clients, such as accountants, real estate agents, and lawyers. As such, this small office layout usually includes individual work areas with desks and one or more rooms in which to meet with clients.
Another typical use for this size office space is a small medical practice, which may have a reception area and several patient/exam rooms.
Average Size
The typical size range is 1000 square feet (100 m² ) and less for a small office floor plan.
One way to get a rough estimate of your best floor plan size range is to multiply the number of workers by a particular space allocation. The allocation per person for an office layout should be about 100 sq ft (about 10 m²).

Small Space, Big Functionality
With a small space, every bit of floor plan matters. So, it’s essential to consider the key functions and needs for your particular small office layout.
Some ideas to consider:
- What layout fits your work style best: open, private, or a mix?
- Can some desks be shared if people have flexible schedules?
- Choose space-saving furniture. Desks with built-in storage, one shared printer, and wireless devices can help cut clutter.
- Many small offices still need a meeting room. Around 100 sq ft (about 10 m²) seats up to four people comfortably. Will that be enough for most conversations?
- If clients visit, think through their path. Do you need a small entry area with seating? How will you guide them to meeting rooms or offices?
- A tiny break area goes a long way. A coffee station and mini-fridge are often enough.
- If your building doesn’t have shared restrooms, plan for at least one small, gender-neutral bathroom.
- Think about storage. What stays at each desk, and what needs its own dedicated space?
Creating a detailed list of the functions you want to accomplish is an important step. You’ll have a thorough checklist of rooms and areas that are musts for your particular business, which is super helpful while browsing or creating floor plans.
Plan for Growth
While you are a small business today, where will you be in 5 years? As you plan the layout, make sure you think about the projected growth rate of the company.
For example, if you’ll be adding employees over the next few years, where will they sit?
With more employees, will you also need additional meeting space or other key rooms?
Are you ready to develop or update your small office floor plan layout?
With some upfront planning and research, you can create a pleasant small office workplace that maximizes productivity, creativity, and employee satisfaction.

Make Smart Decisions Before You Build
Planning a small office is much easier when you can test your ideas first. That’s why all the floor plans in this post were created with the RoomSketcher app. With RoomSketcher, you can:
- Draw professional 2D and 3D Floor Plans in minutes
- Add accurate measurements to every room and workspace
- Visualize your office with 3D Photos
- Walk through your design in interactive Live 3D
- Share your floor plan easily with builders and contractors
Related Articles

10 Best Floor Plan Software Tools for Office and Workplace Design
Are you struggling to find the best floor plan software for office and workplace design? We’ve compared and ranked the top tools to help you plan efficient layouts.

How to Create an Efficient Cubicle Office Layout
Cubicles are a cost-effective alternative to building individual office walls, making them a wise choice for budget-conscious offices. And because they can be easily rearranged, cubicles also offer flexibility and adaptability, making them ideal for dynamic work environments.

Create a Functional Office Layout with These Key Measurements
As you plan your new office layout, it’s important to consider the space required around each piece of furniture. In this post, we’ll give you the information you need.